
SCORZÈ - RIF. GL1615
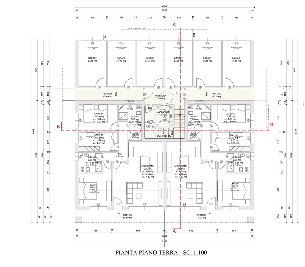
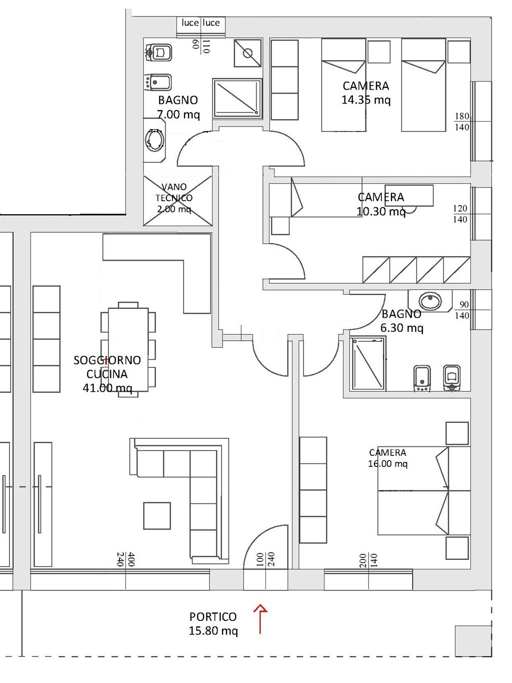
Proponiamo in vendita ultimo appartamento di nuova costruzione, situato al piano terra in contesto moderno di sole sei unità abitative, in zona centrale e comoda ai servizi.
L’immobile, dotato di ingresso indipendente, si sviluppa interamente al piano terra ed è caratterizzato da un’ottima distribuzione degli spazi interni. La zona giorno di oltre 40 mq si affaccia sul giardino privato, ideale per momenti di relax all’aperto, ed è servita da un comodo portico di circa 16 mq.
La zona notte è composta da tre camere e due bagni.
Completano la proprietà un garage al piano terra e un posto auto privato all’interno dell’area condominiale.
L’immobile sarà realizzato in classe energetica A4, con finiture moderne e tecnologie costruttive di ultima generazione.
Consegna prevista entro il 31/07/2027.
(INDIRIZZO INDICATIVO)
Ulteriori informazioni e dettagli disponibili in agenzia.
Se per l'acquisto di questo immobile hai la necessità di vendere prima il tuo, non ti preoccupare! Ci occuperemo noi di tutto, seguendoti in ogni fase, sia della vendita che dell'acquisto, fino al rogito notarile.
Prezzo: Euro 315.000
Rif. GL1615
GL MEDIAZIONI IMMOBILIARI
Via Della Crosarona n. 2/A
30033 Noale (VE)
Tel:
CLASSE ENERGETICA: A4
INDICE PRESTAZIONE ENERGETICA (IPE): valore di progetto
Vicinanze: Scorzè, Salzano, Martellago, Noale, Santa Maria di Sala, Zero Branco.
Ascensore, Giardino di proprietà
Classe A4 Ipe 10 KWh/m²a
Prestazione energetica del fabbricato inverno estate
Via Della Crosarona, 2/A
30033 Noale (VE)
041/442957
SCORZÈ - RIF. GL1615
Proponiamo in vendita ultimo appartamento di nuova costruzione, situato al piano terra in contesto moderno di sole sei unità abitative, in zona centrale e comoda ai servizi.
L’immobile, dotato di ingresso indipendente, si sviluppa interamente al piano terra ed è caratterizzato da un’ottima distribuzione degli spazi interni. La zona giorno di oltre 40 mq si affaccia sul giardino privato, ideale per momenti di relax all’aperto, ed è servita da un comodo portico di circa 16 mq.
La zona notte è composta da tre camere e due bagni.
Completano la proprietà un garage al piano terra e un posto auto privato all’interno dell’area condominiale.
L’immobile sarà realizzato in classe energetica A4, con finiture moderne e tecnologie costruttive di ultima generazione.
Consegna prevista entro il 31/07/2027.
(INDIRIZZO INDICATIVO)
Ulteriori informazioni e dettagli disponibili in agenzia.
Se per l'acquisto di questo immobile hai la necessità di vendere prima il tuo, non ti preoccupare! Ci occuperemo noi di tutto, seguendoti in ogni fase, sia della vendita che dell'acquisto, fino al rogito notarile.
Prezzo: Euro 315.000
Rif. GL1615
GL MEDIAZIONI IMMOBILIARI
Via Della Crosarona n. 2/A
30033 Noale (VE)
Tel:
CLASSE ENERGETICA: A4
INDICE PRESTAZIONE ENERGETICA (IPE): valore di progetto
Vicinanze: Scorzè, Salzano, Martellago, Noale, Santa Maria di Sala, Zero Branco.
Riferimento: 1615
Tipologia: Appartamento
Comune: Scorzè
Zona:
Cucina: Cucina a vista
Camere: 3
Bagni: 2
Box: Singolo
Piano: Terra di 1
Anno costruzione: 2027
Stato conservazione: Nuovo
Stato: In costruzione
Spese cond. annue €:
Riscaldamento: Autonomo
Ascensore, Giardino di proprietà
Efficienza energetica
Classe A4 Ipe 10 KWh/m²a
Prestazione energetica del fabbricato inverno estate